REQUEST A TOUR If you would like to see this home without being there in person, select the "Virtual Tour" option and your agent will contact you to discuss available opportunities.
In-PersonVirtual Tour

$ 100,000
Est. payment /mo
Price Dropped by $35K
12336 Sumac Desert Hot Springs, CA 92240
7,841 Sqft Lot
UPDATED:
Key Details
Property Type Vacant Land
Sub Type Lots/Land
Listing Status Active
Purchase Type For Sale
MLS Listing ID IV25230164
Lot Size 7,841 Sqft
Property Sub-Type Lots/Land
Property Description
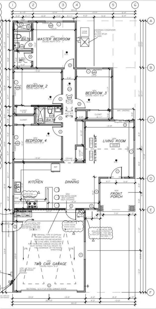
Ideal lot ready to build; 7,841 sq ft lot (approx.) with all approvals in place, offering a rare shovel-ready opportunity for your new home. Situated in a calm desert area, this parcel is fully approved through plan review (just pull the building permit) and includes an installed water meter and on property electric. The approved plans call for a net 1,486 sq ft single-story residence with 4 bedrooms and 2 bathrooms, thoughtfully designed for functional, modern living. Plans are available upon request for buyers or architects to review. Dont miss this opportunity to build without delay.
Location
State CA
County Riverside
Direction From the 62 North continue until you reach Pierson Blvd and head east. Continue until you reach Sumac Drive and head south.
Interior
Fireplace No
Exterior
Utilities Available Electric
View Y/N No
Others
Senior Community No
Tax ID 642043007
Acceptable Financing Conventional, Land Contract
Listing Terms Conventional, Land Contract

Listed by ADAM CASTILLO DYNASTY REAL ESTATE

GET MORE INFORMATION
QUICK SEARCH




